Capelle aan den IJssel – Stationsbuurt 29
Specificaties
- Koopprijs
- € 398.000,- k.k.
- Status
- Beschikbaar
- Bouwjaar
- 1930
- Perceel oppervlakte
- 135 m2
- Aantal kamers
- 3
- Aantal slaapkamers
- 2
Landelijk wonen met vrij uitzicht en toch dicht bij de stad? Tussen de weilanden, wilgenbomen en sloten vindt u een zijstraatje van de ’s Gravenweg: de Stationsbuurt. Via een bruggetje bereikt u, in dit historische straatje, deze charmante jaren ‘30 twee-onder-één-kapwoning. Een verzorgde woning voorzien van een tuin met veel privacy en spectaculair uitzicht op de omliggende weilanden. Met het Schollebos op loopafstand en het stadscentrum, met alle voorzieningen én de metro naar Rotterdam, op slechts vijf minuten fietsen, is de ligging uniek te noemen. Interesse? Wij leiden u graag rond.
Bijzonderheden:
– Bouwjaar ca. 1930;
– Gelegen in rustig en veilig historische straatje;
– Voldoende parkeergelegenheid;
– Landelijke ligging met stadsvoorzieningen op korte afstand;
– Gunstige verbinding richting Rotterdam, Gouda en snelwegen;
– Diepe achtertuin gelegen aan het water;
– Nieuw kozijn met HR++ beglazing, geïsoleerde begane grondvloer (24 cm) en geïsoleerde zolder;
– Isolatieverbeteringen zijn nog niet verwerkt in huidig energielabel;
– De overdracht van de woning zal plaatsvinden bij Zwaveling Notaris te Capelle aan den IJssel;
– Oplevering: Medio maart 2026.
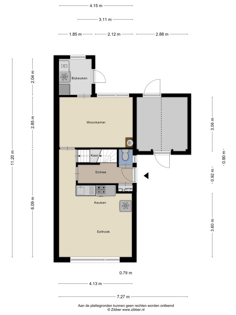
Begane grond
Via de ingang aan de zijkant komt u in het halletje met toegang tot de meterkast, het toilet, de eetkamer en de trapopgang naar de eerste verdieping. De eetkamer is een gezellige plek om met vrienden en familie samen te zijn. Naast de vaatwasser is er een vierpits kookplaat met oven, wasemkap en spoelbak. Met een nieuw kozijn met HR++ beglazing en veel lichtinval is het hier goed vertoeven. Leuk stukje geschiedenis is dat in deze ruimte ooit een kruidenierswinkel was met zijn opslag in de kelderkast. Tussen de keuken en de woonkamer bevindt zich een ruime trapkast waar u veel spullen in kwijt kunt.
Via de hal komt u in de woonkamer. Deze ruimte geeft uitzicht op de tuin. Vanaf de woonkamer is er toegang de bijkeuken, met aansluiting voor de droger, wasmachine en ruimte voor een eventuele extra koelkast of vriezer. De vloeren van de benedenverdieping zijn voorzien van een 24cm dikke biobased isolatie.
Eerste verdieping
Via de klassieke houten trap kom je op de overloop. De ruime slaapkamer aan de voorkant heeft een vernieuwde dakopbouw met dubbele beglazing met veel lichtinval en een schitterend uitzicht over de weilanden. De slaapkamer aan de achterzijde kijkt uit op de tuin en beschikt over een wasbak met warm en koud water. De badkamer is voorzien van een regendouche, wasbak met meubel, mechanische ventilatie, een handdoekradiator en natuurlijke lichtinval. De zolder met Velux- dakraam is ingericht als bioscoopkamer, maar is tevens te gebruiken als logeerplek. De geïsoleerde zolder is te bereiken middels een vlizo trap en voorzien van knieschotten voor extra opslagruimte. Hier staat ook de HR CV ketel.
Tuin
Via de overkapping kom je door de houten tuinpoort in de achtertuin van ruim 13 meter diep. De tuin is leuk gelegen aan een slootje, heeft mooie beplanting en een oud open schuurtje om ook bij slecht weer overdekt te zitten. De schuur is voorzien van een elektra aansluiting. Achter in de tuin is een terras met een bankje en een vuurplaats met toegang tot het water, goed om een hengeltje uit te gooien of met de kano de omgeving te verkennen.
Ligging
Deze bijzondere woning ligt tegen het Schollebos aan, met op loopafstand: de golfbaan, kinderboerderij, een pannenkoekenhuis en verschillende speeltuinen. Op vijf minuten fietsen ligt winkelcentrum de Koperwiek waar u overdekt kunt winkelen. Aan het net gerenoveerde Stadsplein vindt u het Isala theater, een bibliotheek en diverse horecagelegenheden. Op donderdag kunt u een bezoekje brengen aan de markt. Ook het openbaar vervoer (metro en bus) zijn op fietsafstand en het ligt zeer gunstig ten opzichte van de snelwegen A16 en A20.
