Capelle aan den IJssel – Capelseweg 168
Specificaties
- Koopprijs
- € 325.000,- k.k.
- Status
- Beschikbaar
- Bouwjaar
- 1932
- Perceel oppervlakte
- 214 m2
- Aantal kamers
- 3
- Aantal slaapkamers
- 2
Deze charmante jaren ’30 woning wacht op een nieuwe eigenaar die bereid is om met veel liefde, visie en creativiteit het huis om te toveren tot een eigentijds en comfortabel thuis. Gelegen nabij het prachtige Schollebos, biedt deze locatie volop mogelijkheden voor wandelingen, ontspanning en genieten van de natuur.
Het is een plek waar de authentieke sfeer van vroeger perfect gecombineerd kan worden met de gemakken en stijl van nu. Hoewel de woning duidelijk verouderd is en een grondige modernisering vraagt, biedt dit juist de unieke kans om alles volledig naar uw eigen smaak in te richten. Ziet u door de huidige staat heen en herkent u de potentie? Dan is dit uw kans om een woning te creëren die écht bij u past. Plan gerust een afspraak in voor een bezichtiging!
Bijzonderheden
– Karakteristieke geschakelde 2-onder-1 kapwoning;
– Twee ruime slaapkamers met vaste kasten;
– Bouwjaar 1932, woonoppervlakte circa 73 m²;
– Grotendeels voorzien van dubbele beglazing;
– Uitbreidingsmogelijkheden door middel van een aan- en opbouw;
– Royale achtertuin van maar liefst 23 meter diep, gelegen op het noordoosten;
– Recht van overpad in de voor- en achtertuin ten behoeve van de buren (huisnummer 170);
– In de koopovereenkomst zal een ‘nimmer zelf bewoond clausule’ worden opgenomen;
– Oplevering in overleg, kan snel.
Begane grond
Via de ruime voortuin betreedt u de woning en komt u in de hal, voorzien van toilet, meterkast en trapopgang naar de eerste verdieping. Vanuit hier heeft u toegang tot de woonkamer en eetkamer. De ruimte is licht en flexibel in te delen, ideaal voor zowel een gezellige zithoek als een grote eettafel. Aansluitend bevindt zich de dichte keuken. Deze is eenvoudig ingericht en aan vernieuwing toe, maar biedt volop mogelijkheden om er bijvoorbeeld een moderne woonkeuken van te maken met uitzicht op de tuin.
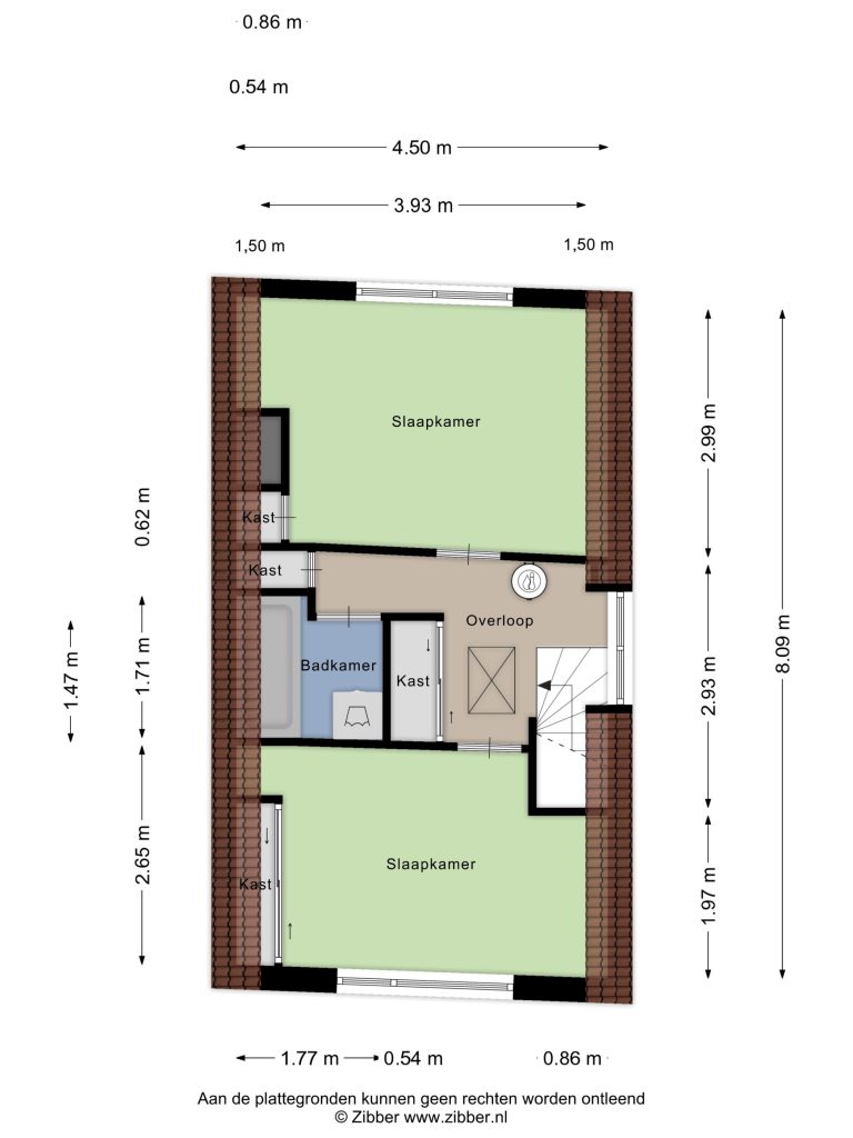
Eerste verdieping
Op de bovenverdieping vindt u twee ruime slaapkamers, beide voorzien van vaste kasten. De overloop beschikt eveneens over bergruimte dankzij extra vaste kasten en hier bevindt zich de gasboiler. De badkamer beschikt over een ligbad en de aansluiting voor de wasmachine.
Buiten
De diepe achtertuin van 23 meter is een absolute meerwaarde van deze woning. U kunt er meerdere zitplekken creëren, een (extra) schuur plaatsen, een overkapping bouwen of juist kiezen voor een groene, onderhoudsvriendelijke tuin. Dankzij de diepte en ligging zijn er altijd mogelijkheden om zowel van de zon als van de schaduw te genieten.
Ligging
De woning ligt op een centrale locatie aan de Capelseweg in Capelle aan den IJssel. Alle dagelijkse voorzieningen, zoals winkels, scholen en sportfaciliteiten, zijn binnen handbereik. Winkelcentra zoals het Alexandrium en de winkels aan de Bermweg bevinden zich op korte afstand. Voor ontspanning in de natuur hoeft u niet ver, het Schollebos ligt praktisch om de hoek en nodigt uit voor een heerlijke wandeling of fietstocht. Daarnaast is de woning uitstekend bereikbaar met zowel de auto (nabij uitvalswegen) als met het openbaar vervoer.
